
From Pusch to Procter/Leiber — Discover the Next Chapter at Steam Pump Ranch

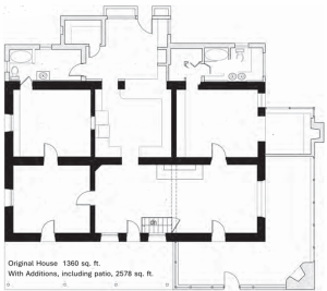
Floor plan of Pusch house (dark lines) and additions by Procter and Leiber families.
1940: Betty and Hank moved into the Pusch Ranch House, where they later updated the bathrooms, expanded the kitchen, and enclosed the porch.
1963: The family moved to the Forty Niner development.
1977: Butch and his wife Kathryn returned to live in the Pusch Ranch House, making further improvements which included rebuilding the south porch, adding the living room fireplace and central cooling.
1988: Butch and Kathryn moved out in 1988, and Hank returned to the home until his death in 1993.

Floor Plan of Procter-Leiber House with additions done by John and Cheryl Leiber.
1972: After Jack Procter’s death, his son John and wife Cheryl remodeled the home. They added a west porch, enclosed the sunroom, expanded the kitchen, created a master suite, and built a rooftop office for John’s law practice.

The Procter-Leiber Family Tree

Jack Procter with Horse in Front of Horse Barn
John “Jack” Monroe Procter was born in Oakville, Kentucky on October 4, 1891. At age nineteen, he moved to El Paso, Texas, where he boarded with his cousin Lee Orndorff and Lee’s wife, Alice. There, Jack began his professional career as a bank cashier, learning the fundamentals of banking.
In 1916, Jack married Elizabeth “Libba” Simmons (1899-1966). By the 1920s, the couple lived in Eastland, Texas with their two children, daughter Elizabeth “Betty” and son John. Jr. “Sonny”. During this time, Jack rose to the position of bank vice president.

Betty and Her Mother, Libba
Later in the 1920s, Jack transitioned into hotel management in Pasadena, California. In 1932, the Procter family relocated to Tucson when Jack became manager and vice president of the Pioneer Hotel. The family lived in an apartment within the hotel, and in late 1940s – mid 1950s, Jack also owned and managed the El Presidio Hotel at Broadway and Fourth Avenue.
Between 1938 and 1943, through a series of transactions, Jack acquired Steam Pump Ranch—1,120 acres originally homesteaded by the George Pusch family. He constructed a modern home and numerous outbuildings. Ranch hands managed the daily operations and livestock, which included prize bulls, horses, and chickens. Steam Pump Ranch became a retreat for wealthy visitors and celebrities drawn to the romance of the West. Jack welcomed guests to experience what he proudly called the “western lifestyle,” often referring to the ranch as his “favorite diversion.” Visit our Steam Pump Ranch 1874-Present page to learn more about the buildings that remain today, many of which are listed on the National Register of Historic Places as part of Steam Pump Ranch (2009).
Between his arrival in Tucson in 1932 and 1960, Jack played an active role in the growth and development of both Tucson and the state of Arizona. He served as Arizona State Highway Commissioner, President of the Tucson Chamber of Commerce, and participated on numerous civic committees. He was also a founding director of the Tucson Airport Authority, established in 1948 with the mission of promoting air transportation and commerce in Arizona and maintaining the airfield’s runways and facilities.
Jack also played an active role in establishing the Tucson Rodeo. In 1942, he—along with actor and singer Gene Autry and other local leaders—helped expand the annual event. During the years when western films were being produced at Old Tucson, many stars of the era, including Gary Cooper, Jimmy Stewart, Michael Landon, and Debbie Reynolds, took part in the rodeo parade.
Jack’s enthusiasm for the Tucson Rodeo became a family tradition. His great-grandsons, and now his great-great-grandchildren, have continued that legacy by participating in rodeos throughout the region, including the Tucson Rodeo.

Sells Rodeo – November 1941. Jack Procter far right.
Jack retired in the 1960s and gradually sold portions of the property. He remained in his home at Steam Pump Ranch until his death in 1972. At that time, fifty-six acres remained, including what is now the historic core of the ranch, which he bequeathed to his grandsons, John and Henry “Butch” Leiber.
In 2006, the Town of Oro Valley acquired the remaining fifteen acres through a Pima County bond for historic preservation.
Jack and his wife, Elizabeth are buried at Evergreen Memorial Park Cemetery in Tucson (Plot: Block 34, ID: 52150434 and 52150433. Refer to findagrave.com for more details.

Gravesite Marker John Monroe Procter, Evergreen Cemetery, 1891-1972

John Monroe Procter Jr. Draft Card and Army Enlistment Information
John Monroe “Sonny” Procter Jr. was born in El Paso, was drafted into the Army in 1942, and married Betty Kathleen Gleeson in 1949, where they lived at Steam Pump Ranch.

John Monroe Procter, Jr. Marriage Notice to Betty Gleeson – Tucson Citizen, Sat, Nov 26, 1949
Sonny passed away in 1992 and is buried between his father and Mendota “Minnie” Ravenscroft (former head housekeeper at the Pioneer Hotel) at the Evergreen Memorial Park Cemetary in Block 34, Section A – no headstone is present.
John Monroe Procter Jr. Obituary 1992 – Arizona Daily Star
Elizabeth “Betty” Procter was born in El Paso, Texas, to Jack and Elizabeth Procter. The family lived in Eastland, Texas, Pasadena, California, and eventually settled in Tucson, Arizona. Betty attended the University of Arizona, joined Kappa Kappa Gamma, and was crowned Queen of the Harvest Festival, and a socialite of Tucson.
She met a National League All-Star baseball player, Hank Leiber during his visits to Arizona, and they married in Yuma in 1940. They lived at Steam Pump Ranch from World War II through the mid-1960s. During their residence, Betty and Hank lived in the Pusch ranch house on property and made many upgrades and expansions to the home. After leaving the ranch, they settled at 49er’s Guest Ranch Estates on Tucson’s east side.

Hank Leiber and Betty Procter Engagement Photo MLB Press Release, November 17, 1940

Hank and Betty’s Marriage License, December 30, 1940
Betty and Hank lived in the Pusch ranch house on property and made many upgrades and expansions to the home.
Betty modeled for Cele Peterson’s clothing shop and worked at the Pioneer Hotel gift shop, where her father was manager. She specialized in Native American pottery and jewelry.
The couple had two sons, John and Henry “Butch” Leiber.

Betty Procter-Leiber in Late 1930s/Early 1940s Car
Betty passed away in 1978 at age 59 from an aneurysm.

Hank Leiber and JF Pops McKale, 1941
Henry (Hank) Edward Leiber, born in Phoenix, Arizona to Henry F. and Hattie M. Leiber, was a standout athlete at Phoenix Union High and the University of Arizona, where he lettered in football, baseball, and basketball. He was inducted into the Arizona Sports Hall of Fame in 1963.
Hank played Major League Baseball with the New York Giants (1933–38) and Chicago Cubs (1939–41), earning three All-Star selections (1938, 1940, 1941).
After baseball, he became a successful real estate developer, helped bring spring training baseball to Tucson in the 1950s, helped develop the Oro Valley Country Club Estates and Forty Niner Country Club. A scratch golfer, he was also a founding member of Tucson Big Brothers and active in community organizations.
He married Elizabeth “Betty” Procter in 1940 and had two sons, Henry “Butch” Jr. and John Lee. Hank passed away in 1993.

Hank Leiber Sign Located North Side of Garage Building at Steam Pump Ranch

Hank Leiber Reading a Magazine in the Sun Porch of the Procter-Leiber House.
A grandson of Jack and Libba Procter, John Lee Leiber, and Cheryl Pledger both graduated from the University of Arizona and married in 1968. They moved into the Barbecue/Caretaker House (the building where caretaker Carlos Rivera also lived) at Steam Pump Ranch to care for Jack, who passed in 1972. John and his brother Butch inherited the ranch, which at that time was around 350 remaining acres. The land extended from near First Avenue to the north to the CDO wash.
John and Cheryl remodeled Jack’s home increasing its size with a west porch, an enclosed sunroom, an expanded kitchen, a new a primary suite, and a rooftop office for John’s law practice. For family enjoyment, they added a basketball court, a built-in swimming pool, and an RV awning. Additional structures included a tack room and boarding stables on the north end of the property.
John and Cheryl raised four children – Sean, Zane, Evan, and Michelle “Missy” – on the ranch. Zane Leiber followed his grandfather, Hank, into pro sports, playing for the Chicago White Sox in 1993.

Procter-Leiber Family Gathering Christmas, c. 1972.
The family lived at Steam Pump Ranch until 2007, when the property was acquired by Pima County and the Town of Oro Valley, but remained in the greater Oro Valley area.
John Leiber passed away in 2025.
Watch an interview with John & Cheryl Leiber from February 23, 2021. This interview by Joel Woppert from the Town of Oro Valley captures John and Cheryl sharing firsthand memories of life at Steam Pump Ranch and the family’s deep connection to the historic property.

Henry “Butch” Leiber

Butch Leiber and daughter, Leslie, relaxing on a Willys Jeep.
Henry “Butch” Leiber graduated from Amphitheater “Amphi” High School and also the University of Arizona. He married Kathryn “Oot” and lived on the property from 1977 – 1988. They had a daughter, Leslie.
Currently he lives in Montana with his second wife, Dorothy.